 |
Выкройка
 |
Схема узора "Звездочки"
 |
Обозначения
 |
|
|
В комплекте с пинетками и шапочкой малышу будет тепло и уютно.
Размер: 62.
Материал: 150 г розовой пряжи (50 г = 225 м); крючок № 3.
Плотный узор: начать цепочкой в.п. 1-й р. : вязать ст б/н во 2-ю, а затем в каждую начальню в.п. 2-й и все последующие р.: вязать ст б/н, при этом крючок вводить в полное основание каждой п. В конце ряда связать в.п. и повернуть работу. Плотность вязания: 18 п. х 20 р. = 10 х 10 см.
Узор "звездочки": В точке А начать цепочкой в.п. В 1-м р. крючок вводить в каждую 2-ю начальную в.п., в последующих р. - по схеме. Обозначенный стрелками раппорт повторять в ширину и высоту. Петли за стрелками - кромочные. Плотность вязания: 13 п. х 18 р. = 10 см.
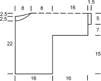
Детали кофточки: набрать 18 в.п. (10 см) - край левого рукава. Вязать 4 р. (1,5 см) плотным узором. Затем вязать "звездами", при этом крючок воодить в каждый ст б/н (8 раппортов = 49 п. + 3 в.п. подъема). Через 8 р. (16 см) набрать для переда и спинки по 27 в.п. для 6 раппортов (15 см). Еще через 4 р. (8 см) оставить для горловины спинки 1 раппорт, для горловины переда - 2 раппорта, далее вязать двумя частями. Еще через 4 р. ((8 см) оставить п. передней кромки. Спинку вязать еще 8 р. (16 см). Для правой части переда набрать 39 в.п. и вязать 8 раппортов "звездами" 4 р. (8 см). Для правого края горловины набрать между передом и спинкой 12 в.п. и снова вязать 20 раппортов узором "звезды". Через 4 р. (8 см) закончить по переду и спинке по 6 раппортов. Вязать средние 8 раппортов - правый рукав - 8 р. (16 см). При этом в последнем р. узора "звезды" пропустить в.п. между "шишечками". Закончить рукав 4 р. плотной вязки.
Сборка: выполнить швы. Обвязать края 4-мя р. плотного узора. При этом на правой стороне следует сделать 7 отверстий для пуговиц, горловину немного присборить.
© Modische Maschen, 9/1992
|
|